Courtesy of: Leonardo Jo, Leonardo Jo
(MLS# LEONJO)
Inquire About It
Schedule A Showing
About 379 7th, Brooklyn, New York, 11215
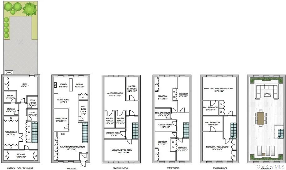
Bring your contractor and your designer and create the magical home you've always envisioned in this rare Park Slope townhouse, perfectly located on a tree-lined block of 7th Street between 5th and 6th Avenues. The owners have pristinely gutted this property and installed new subfloors, making this the ultimate blank canvas townhouse for you to craft a masterpiece, while saving you hundreds of thousands of dollars in renovation costs and many months of demolition and paperwork. Spanning 3 floors, and a full basement, this high ceiling, expansive space is primed for customization to suit your unique vision of modern luxury living. Fully renovated homes in Park Slope are commanding millions more, offering you a lucrative opportunity to build equity while designing your dream space. Key Features: - Prime *Park Slope* location near top schools, parks, and amenities - 18.33 x 100 lot size, with a maximum extension buildable to 3,666 sq ft of living area (currently at 2,475 sq ft of living area) - High ceilings, large windows, and large backyard and rooftop Don’t miss out on this exceptional opportunity to build a custom luxury home in Park Slope
Street Address: 379 7th
City: Brooklyn
State: New York
Postal Code: 11215
Property Information :
Listing Status: Active
MLS #: 961014
Bedrooms: 7 bd
Bathrooms: 6 ba
Price: $3,500,000
Construction Status: Built in 1899
Last Modified : Mar 2 2026 3:47AM
Courtesy of: Leonardo Jo, Leonardo Jo (MLS# LEONJO)